NOVI STAMBENI PROJEKAT
THE ELIX RESIDENCE
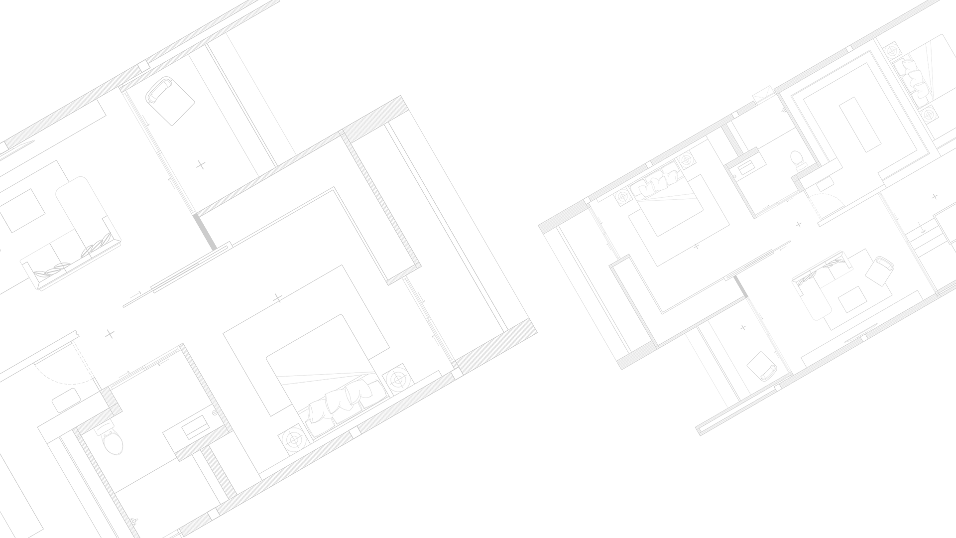
Stambeni objekat spratnosti Po(-2, -1) + P + 5 nudi savremeno koncipiran prostor koji prati potrebe današnjih kupaca. U zgradi se nalazi 56 stanova, raspoređenih tako da odgovore različitim životnim stilovima, od praktičnih stanova idealnih za pojedince i mlade parove, do porodičnih jedinica koje nude udobnost i funkcionalnost za svakodnevni život.
Objekat raspolaže sa ukupno 77 parking i garažnih mesta, od čega je 22 parking, a 55 garažnih.
Lokacija u naselju Pantelej predstavlja jednu od ključnih prednosti. Reč je o mirnom, dobro povezanom delu grada, poznatom po atraktivnosti i uređenoj infrastrukturi. Stanovnici imaju na dohvat ruke sve što je važno za lagodan život, od prodavnica i vrtića, do glavnih saobraćajnica koje omogućavaju brzu komunikaciju sa ostatkom grada.
Objekat je projektovan kao spoj kvaliteta, funkcionalnosti i pouzdanosti, uz savremene standarde gradnje i promišljene tehničke detalje koji stanovanje čine prijatnim i dugoročno isplativim.

PODACI O PROJEKTU
Svaki detalj dokazuje naš pristup. Kvalitet je osnova, a kompromisi nisu deo našeg plana.
Struktura objekta
Po(-2, -1)+P+5
Objekat spratnosti suteren + prizemlje + 8 spratova.
Stambeni kapaciteti
U objektu se nalazi 56 stanova.
Parking i garažna mesta
Obezbeđeno 22 parking mesta i 55 garažnih mesta.
Pantelej
Lokacija
Atraktivna i dobro povezana lokacija
Proverite šta kupujete - brzo i lako
Sekcije sadrže originalnu dokumentaciju ishodovanu u skladu sa Zakonom o planiranju i izgradnju i podzakonskim aktima i osnove svih spratova objekta preuzete iz Projekta za izvođenje.

POUZDANOST I KVALITET U GRADNJI
DOMELIX INVEST
Gradimo domove u koje se veruje. Iako smo nova firma, naš tim čine odabrani projektanti, iskusni izvođači radova i nadzorni organi sa kredibilitetom koji garantuju visok nivo stručnosti.
Naša misija je da vam pružimo idealan balans korektne cene i vrhunskog kvaliteta prilikom kupovine nekretnine – bez kompromisa.
Radove izvodimo u Nišu (Bulevar Svetog Pantelejmona, Bulevar Nemanjića, Bulevar Zorana Đinđića itd) uz maksimalno profesionalan pristup, savremene standarde gradnje i jasnu posvećenost preciznoj organizaciji.
Garantujemo pouzdanost i poštovanje rokova izvođenja radova, a brzinu istih pripisujemo već pomenutoj organizaciji našeg tima.
Pružite nam svoje poverenje, jer naš cilj nije samo izgradnja stana, već stvaranje toplog, sigurnog porodičnog doma. Uz Domelix dom iz snova je vaša realnost!

